Next Project

Sanctuary

Part 2 Project 2003
Matthew Phillips
University of Greenwich | UK
My early analysis looks at the possibility of a mutually acceptable architecture, examining the practicalities that compromise the notional purity of a certain aesthetic credo.

Previous plans for the site in Antwerp had proposed one-phase strategies. My plan proposes the gradual shielding of the site from the destructive presence of a local motorway junction, implementation of a grid of streets that connects with the existing fabric of the city and the detailed design of the first inhabitable structures on the site.

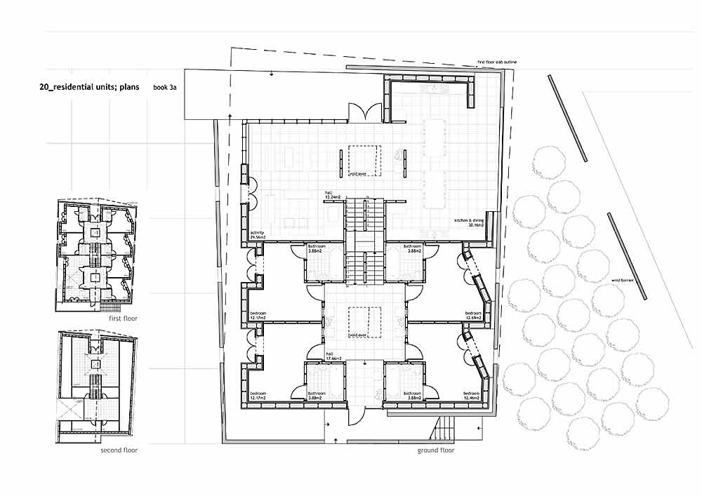
These residential buildings refer to the ornamented gables of the bourgeois domestic architecture of Antwerp. The controlled weathering of the facades and the buildings’ forms attempt to generate an acceptable architecture; an abstraction of architectural context and a new urban identity for this previously neglected area.



The students looked this year at enclosed communities in the city, ideas of the individual and the communal in architecture, and where these communities meet the city.

This project began with a witty and intelligent interrogation of a certain generic contemporary aesthetic in architecture, and continued into a sure-footed analysis and strategy for a large and difficult site in the south of the city of Antwerp.

The site strategy has a series of individually sustainable moves, all of which are conversant with the planning context of the city and region, while retaining an autonomous design sensibility.

The buildings themselves refer to existing typologies in the city, and enact in architectural detail an engagement with time and type.

2003
• Page Hits: 3430         • Entry Date: 21 June 2003         • Last Update: 21 June 2003