Next Project

The Picture Palace Is…

Part 2 Dissertation 2015
David Magennis
Queen's University Belfast | UK
“Galway has a certain complexity to it, that you don’t see in Europe. I was really thinking about the conviviality of both the thing, the city and what people do there. In Ireland they do snugs. These are very efficient, because if I put in a 50mm partition I can sit beside this stranger, so you can double your capacity. So I began to engineer the furniture of the thing, unhooking peoples perceptions of public space.” Tom de Paor. (speaking during a visit to the building May 2015)

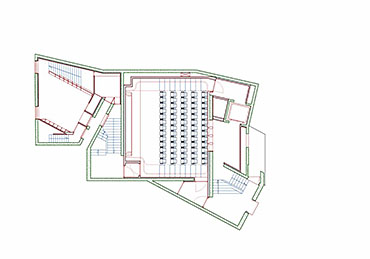
The Picture Palace, by Tom de Paor is an as yet unfinished art house cinema in Galway’s popular Spanish arch area. The building cuts a strong figure in the skyline of the city, it’s roof and weather vane mark the site across the city.

This Dissertation is an attempt to understand and describe Tom de Paor’s Picture Palace, it realises that architectural knowledge is transferred through observation and understanding the actual thinking of buildings.

It has two parts; an attempt to place the building within the baroque. The second accepts it’s actuality, cataloging and describing the artefact. Drawings produced accurately describe it, the text communicates the Picture Palaces’s thinking, feeling and power.


Tutor(s)
Andrew Clancy
2015
• Page Hits: 13862         • Entry Date: 10 July 2015         • Last Update: 10 July 2015