Next Project

Adventure Farm

Part 1 Project 2008
Robert Hankey
London South Bank University | UK
“Eco-design” is all too often about efficiency... to influence change in society we must explore new directions, not just make existing problems less bad. The Adventure Farm aims to be one such pioneer; an experimental community hub in a wider programme of urban open-spaces. Both programatically and formally, it juxtaposes terraced educational gardens with faceted climbing walls in an effort to engage people in their environment - inspiring an appreciation of physicality, materiality and process. This aim, in my mind, is the most important goal in the move away from our throw-away culture and toward social, economic and environmental sustainability.

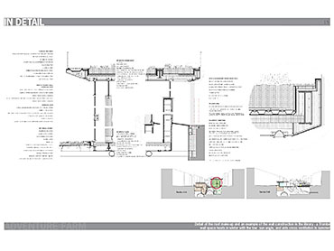
The kit-of-parts design in which wall construction is independant of structure enables a celebration of materiality, texture and colour. This vibrant patchwork recognises the impermanance of design; it embraces change and experimentation



Robert Hankeys' project is a response to the challenge of designing an innovative ecology-institute for a brownfield railway viaduct site in Faringdon - it also creates a memorable new view of St Pauls Cathedral.

Some may say that this is not architecture in the traditional sense however the project proposes a new urban environment blurring the boundaries between architecture and landscape. A new structure straddles the viaduct bearing allotments and terraced gardens that bring light and air deep into the section.

This kind of environmental architecture is relatively simple in terms of form but acknowledges a slow and qualitative design approach. It rejects simple formulaic arguements about costs and carbon foot print recognising the complexities of life cycle.

Gardening on top of the viaduct with a view to St Pauls or climbing down the side of the section past new kinds of live/work spaces acknowledging both rest and play as important aspects of urban space.

Boundaries are blurred and merged between different kinds of activities and new kinds of social and architectural space emerge.

2008
• Page Hits: 15308         • Entry Date: 14 September 2008         • Last Update: 24 November 2008