Next Project

PAJU book city 2

Part 2 Project 2009
Chungseok Tak
Korea National University of Arts | South Korea
It had been a decade since the construction started and, had been two decades since people started discussing Paju Book City. What attracts my interest is not only the contents of this city but also the way to make this city. This city is the community of cultural life which was dreamt up by publishers and architects. This is absolutely different to the usual cities which are made by political power and capitalism. Of course, there was a critical situation. The concept for the infrastructure of this city was trite and there were other matters which could make the new angle of this city difficult to achieve. It isn't different from the condition of 2nd phase.
This 2nd site is in contact with a large scale housing project which is developed by Korea National Housing Corporation. Therefore, this project's main theme was 'consider looking at our cities and architecture’ through the constitution of PAJU BOOK CITY and architecture. Also, it isn’t only to understand the city and masterplan but also adjust to the conditions of the site by own conception.

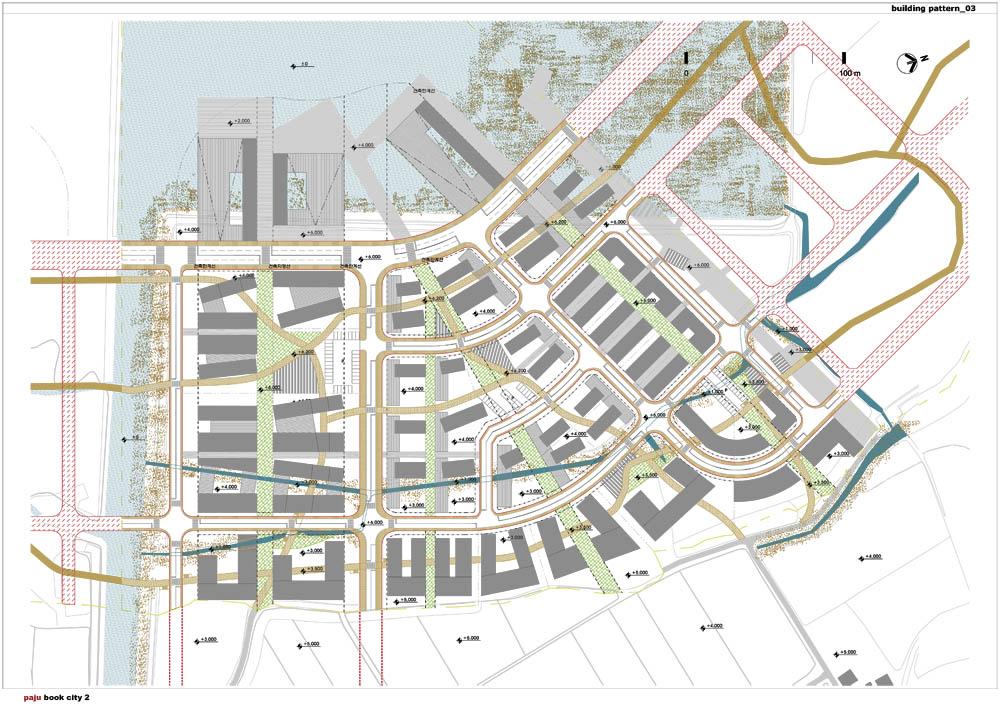
There is the essence of urban-landscape in public and site specific, and a human being is the main body and target of the urban-landscape. The urban-landscape is completed when it is read the urban system made by a set of buildings with a human being at the open-space. The most important problem is how to make the organization of open-space in the urban planning focused a road. The public open-space planning is to decide a space to empty by way of the text which is the natural and artificial system in ‘PAJU BOOK CITY 2’, not create a new physical system.

The city with appropriate ratio of voids and solids, or rather, the city filled up after the voids are respected of their importance, will be able to enjoy its extended life with prosperity.



I am pleased to have a privilege to introduce Mr. Tak Chung Seok’s work as one of most successful achievement in my unit during 2008 semester.

The project of our studio was design of ‘Paju Book City 2nd Phase’ located just connected with the 1st Phase which project I had been involved in as a master-planner and coordinator for last 10 years. The process composed of 2 semesters; First semester was to establish master plan and design guideline for each sectors and individual buildings, and second one is to design every building in one or two sectors.
Mr. Tak’s 1st semester work was selected as the master plan and he took responsibility as coordinator for other sectors which the other students took parts in for 2nd semester work.

His work is based on the indivisibility of that the city and the architecture which means that the integrating buildings doesn't become to be a city nor vice versa. The relationship between both is not a so called, 'part and whole'. The building follows the grammar of city and the building is the metonymy of the city. His work is how and where to make city and architecture meet each other.
He extracts some different layers from the characteristics of the site area and changes them into urban infrastructures. This includes water lines, road, footpath, green areas and invisible void axis. These urban infrastructures are multi-layered and generate the urban system. The node of these networks are thought as a architectural scale like a location of public program. The same pattern of networks are generated as sectors. Sector is a sort of field on which urban scale and architectural scale intermediate each others' meaning and shape.
Finally he keeps a distance from scale of sectors, zooming out and looking trough all sectors and in-between sectors. And Mr Tak adjusts each sector's architectural and urban rules into whole view. This scale zoom in-out feedback is the essential point of his works.

Finally his work got top marks with high notable mention, and was encouraged to apply for your award.


Seung H-Sang


Tutor(s)
Hyosang Seung
2009
• Page Hits: 10188         • Entry Date: 10 July 2009         • Last Update: 20 July 2009