Next Project

Places for Making: East Tilbury

Part 1 Project 2011
Andrew Gibbs
University of Cambridge | UK
East Tilbury sits on the Thames gateway, a product of the visionary Bata
Shoe Corporation. At the point of its conception, the town’s existence
was one of symbiotic exchange: a fluid model of industrial productivity in
exchange for space, fresh air and a range of social infrastructures and
leisure provisions. With Bata’s subsequent abandonment, such have fallen
into disrepair and disuse; what now presides is an overwhelming state of
deflated optimism. While minor growth of the industrial estate has been
witnessed since the 1950s, the occupancy scenario remains chaotic; without
specialised focus and isolated from the consciousness of the settlement’s
residing population.
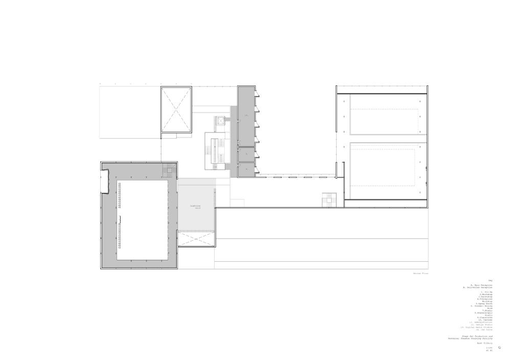
The proposal’s main function is the fabrication of stage sets, providing
a purpose built arena for set assembly. Deep catwalks facilitate popup
workshops to establish themselves as the set grows, overcoming the
issues faced by inner city fabricators. The building is posited as a working
backstage, exploring the shifting nature of these transient spaces and the
chaotic worlds that occupy them.
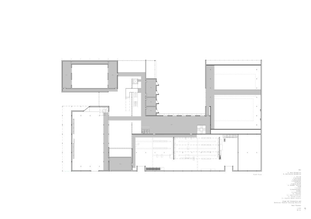
In addition, the project provides young people with comprehensive training
in theatre-based trades, gaining experience working on live projects. Such
allows the opportunity for the wider settlement to witness and engage with
the estate’s productivity, forging links between younger generations and the
estate, for whom the nostalgia of Bata has little significance. In similar terms,
the proposal negotiates the delicate junction between settlement and estate,
looking to extend the public realm of the town centre and remove the hostile
barriers that culminated in the estate’s introversion.
The project explores how building character changes with varied occupancy,
understanding the theatrical workshop as a den of ambitious creation,
exhibiting a layering of themes over time. As a result, such environments,
caked in raw material and construction, are arenas of exhilarating
atmosphere. Here, construction takes place in a steel matrix, subdivided by
concrete and timber partitions; elements of set that compartmentalise the
building volume, exploring the concept of the stage set and its allusions to
ambiguous spaces that lie beyond the realm of immediate performance.


Tutor(s)
Mr Jay Gort
Nathan Jones
2011
• Page Hits: 17970         • Entry Date: 12 September 2011         • Last Update: 12 September 2011