Next Project

Negotiating the Wall: Bicycle Shop, Workshop & Hostel, Derry/Londonderry, Northern Ireland

Part 1 Project 2014
James Foskett
Queen's University Belfast | UK
Conservation within historic cities and towns has always played an important role in architecture and society. The memories and lessons from historic buildings can contribute to a city’s development. The aim of this project was to research how a bicycle shop, workshop and hostel could be integrated in a respectful, yet contemporary manner as the fabric of cities increase in size and density.

To explore this concept, the site chosen for this project was located within the historical walled city of Derry/Londonderry, Northern Ireland. It is the second-largest city in Northern Ireland and covers both banks of the River Foyle (City side on the west and Waterside on the east). The old walled city lies on the west bank of the River, which is spanned by two road bridges and one footbridge (the Peace Bridge). Derry/Londonderry is the only remaining completely walled city in Ireland and is one of the finest examples in Europe.

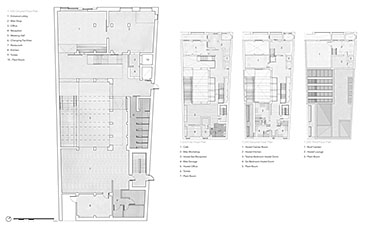
The comprehensive brief of a bicycle shop, workshop and hostel also required a connecting communal space. A further study of the project is the analysis of the thresholds of Derry/Londonderry’s meeting spaces. Observation started by studying the political centre of the city, the Guildhall (built in 1887) and its intricate experiential threshold upon its users. Through further analysis of other meeting spaces within the city, the project took inspiration and developed its plan and section from this research.

The site poses another difficult challenge because it is compressed between two historically important buildings; the First Derry Presbyterian Church and the Apprentice Boys of Derry Association and Memorial Hall. The site only has one façade that faces and interacts with the street and the city.

The buildings either side of the site have a different relationship to the street, being polar opposites in both style and function. To investigate how to relate both buildings in a respectful way, elevation studies were carried out. The project’s façade is a combination of horizontal and vertical lines emulating the neighbouring buildings.

This project celebrates the culture and vast history of Derry/Londonderry by sensitively echoing its neighbours and surrounding context.


Tutor(s)
Dr. Sarah A. Lappin
Keith McAllister
Jane Larmour
2014
• Page Hits: 18378         • Entry Date: 04 September 2014         • Last Update: 01 December 2014