Next Project
Commendation

"Nomadsoho", media workshop in Ham Yard, Soho, London.

Part 2 Project 2003
Ainhoa Abreu Diaz
Julianne Cassidy
University of Portsmouth | UK
"... to create an electronic eddie in the electronic flow."¹

With the introduction of the invisible networks of new information technologies, urban space looses its physical limits and stability and becomes a field of subjectivities, of flows, pulses and intensities, a phenomenal space in perpetual change.
Architecture in such an environment becomes a new condition where the physical and the virtual meet, ceasing to be an assertive form and becoming a phenomenal form in the phenomenal city.
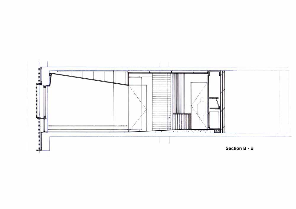
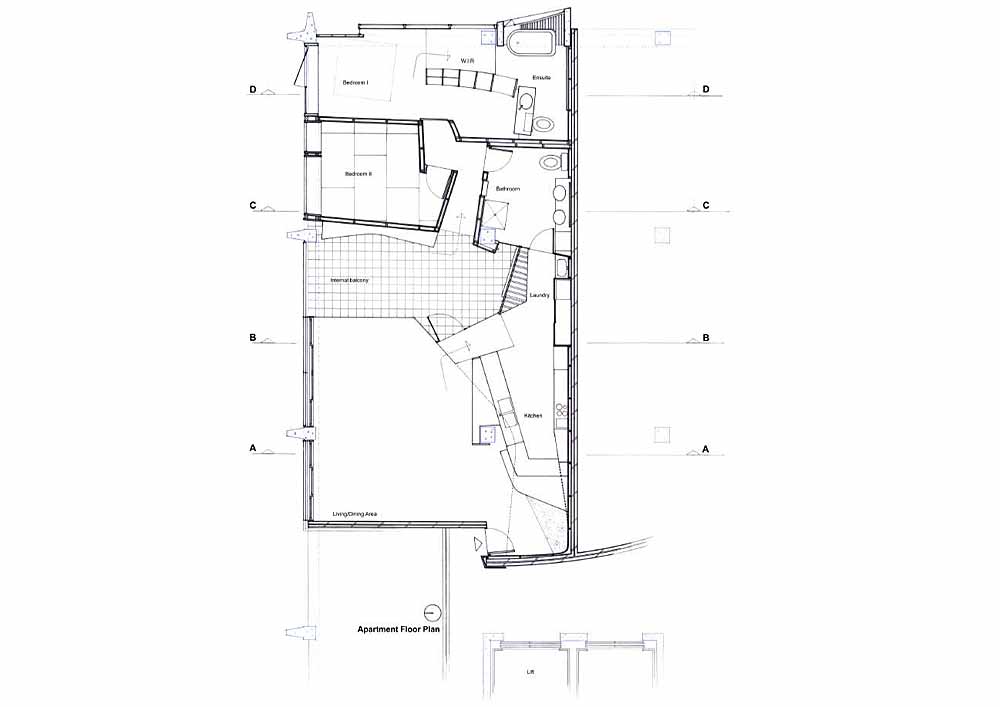
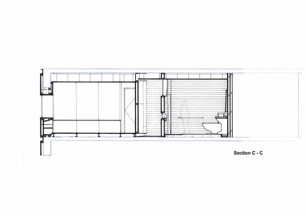
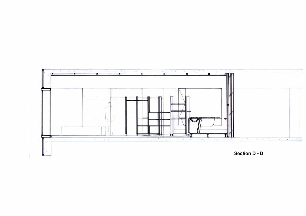
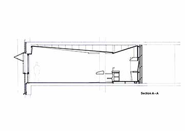
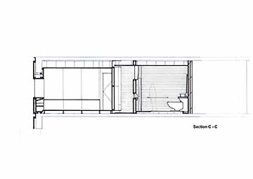
"Nomadsoho" is conceived as a facilty providing a public image and meeting place in the heart of London for a virtual activity, strongly present in the area but hidden behind its entertainment face. It is a facility for the creation and editing of information providing its users with a range of rentable accommodation, technical equipment and assistance. The node of “nomad” becomes its digital plaza, through which the facility interacts with the city. Users have the opportunity to show-case their work onto this wall, a 4.6m thick plane clad in SGG Priva-lite® glass, under constant transformation.

¹ Ito,T. (1993). Garden of Microchips: The Architectural Image of the Microelectronic Age. In Teramatsu, Y. (Ed.). JA Library 2: Toyo Ito. Japan: Shinkenchiku-Sha, 15.



One of Abreu-Diaz’s particular skills has been to deftly tread a path between her passion for the theoretical on one side and her desire to inflect the built environment on the other, where inflection is the proper job of the architect in the heart of a 21st century metropolis. That this ‘inflection’ is also a confident intervention in the city which both responds to its immediate physical context and plugs into the social context and working environment of the complex digital core of Soho is a profound achievement.
Equally effective is how the building in detail – programmatically and in its construction – remained shot-through, from inception to completion, with findings from the theoretical work of her reading and her dissertation which was based on the idea of the Nomad, and how this way of existing was relevant to 21st century urban dwelling.
Abreu-Diaz’s work is at its strongest, however, where this programmatic confidence and contextual sensitivity is revealed and enhanced through clear and skilful drawing and model-making all of which serve to sustain the strong narrative and visionary drive of the project.
The vehicle for this project was a site in Soho, the programme was to create a physical centre to a virtual activity . A centre for the media for film editing, to project this creative work into the physical arena of the city, for it to become an interactive environment, where building facades become live walls of information and projection. This project combined the possible with the probable and fuelled imagination for an interactive city.

Tutor(s)

2003
• Page Hits: 18054         • Entry Date: 21 July 2003         • Last Update: 21 July 2003