Next Project

Resolver La Habana

Part 2 Project 2018
Kristen Tan
Chen-Yong Tan
Harjeet Matharu
Cyrus Lee
Lang Jin
Luke Gordon
Hon Yen Chong
University of Bath | UK
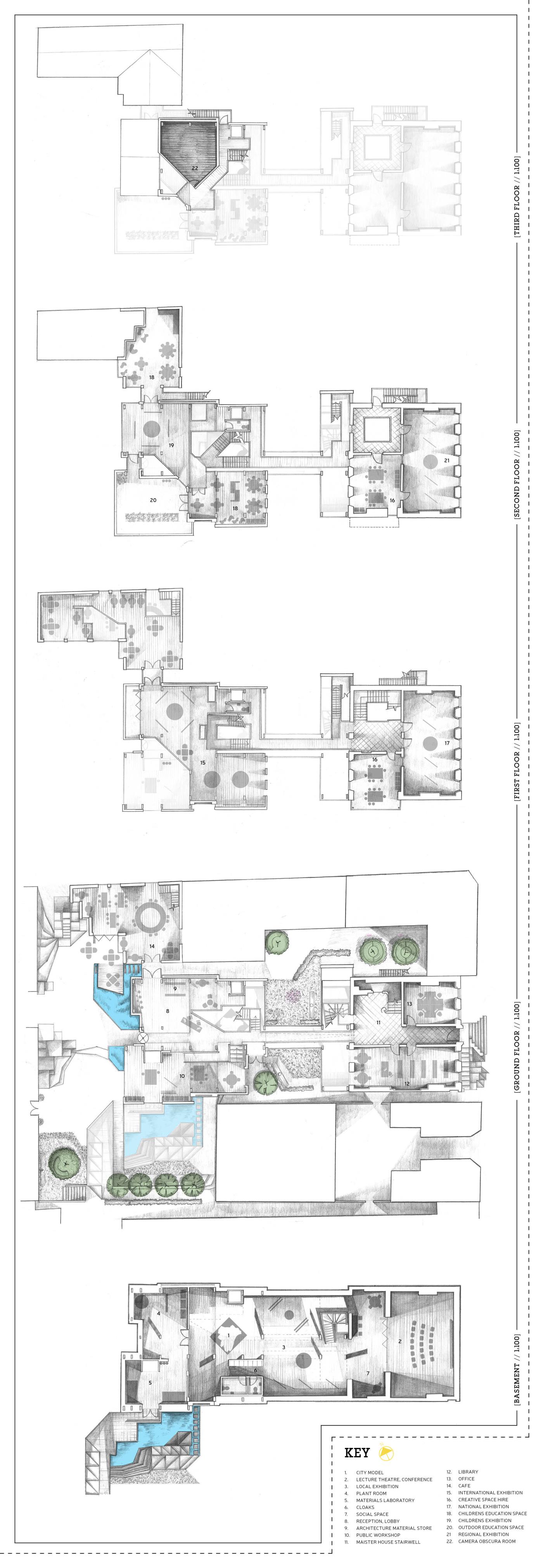
The Resolver La Habana Masterplan proposes to re-establish Havana Bay as the centre of cultural activity in the city. Responding to research that evaluates water, waste and transport, the masterplan combines large scale frameworks with smaller urban interventions. Utilising much of the city’s decaying architecture, community facilities and greenspaces are introduced throughout. This is integrated into a coastal design that re-establishes the city’s connection with its water and landscape.

Tutor(s)


Mr Alex Wright
2018
• Page Hits: 4534         • Entry Date: 10 October 2018         • Last Update: 10 October 2018