Next Project

Heart of Machines

Part 1 Project 2022
Muhammad Fahim Ramle
MARA University of Technology - Perak campus | Malaysia
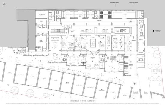
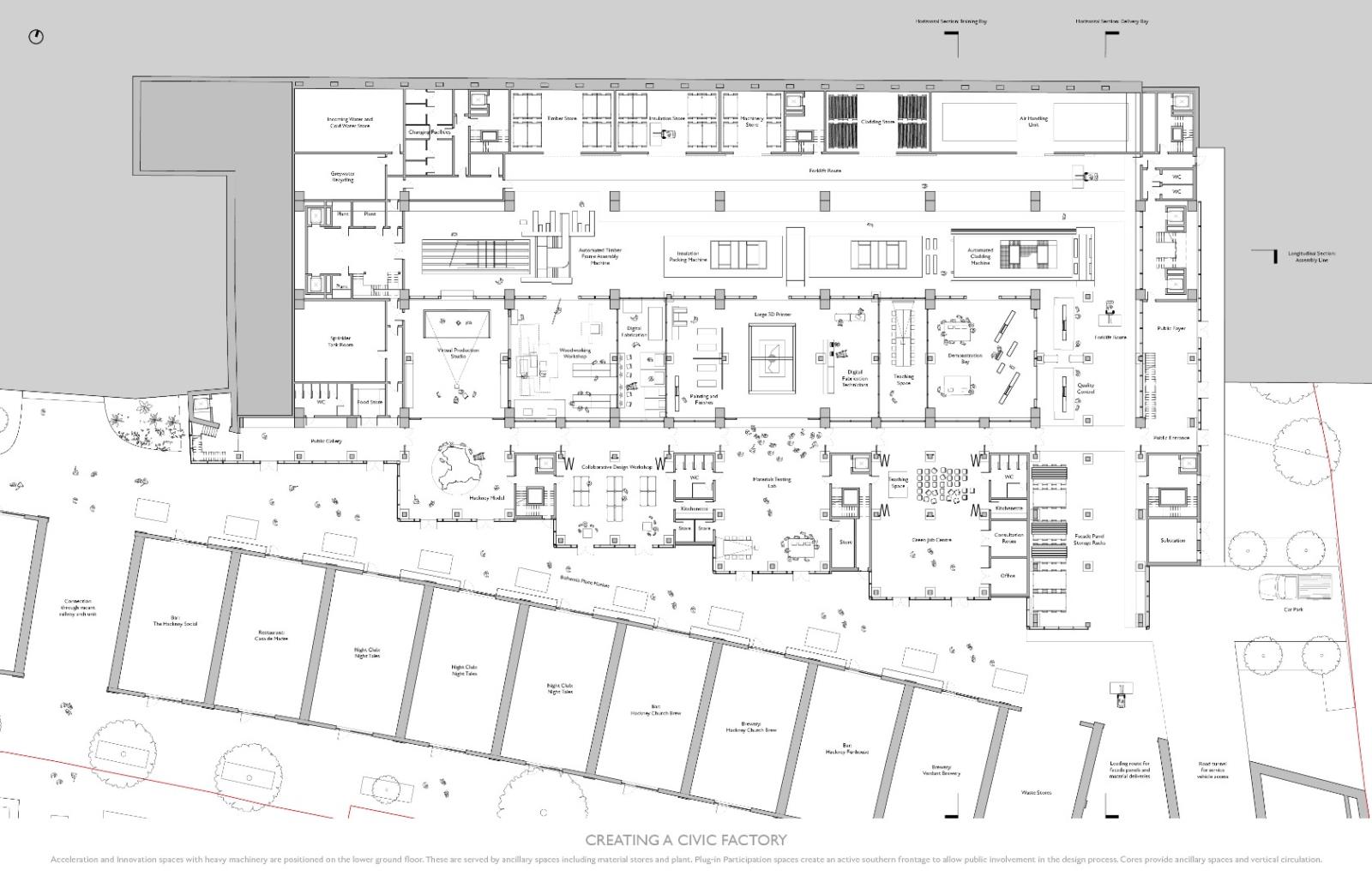
Heart of Machine is a vintage club gallery for supercar engine collector located at centre of Ipoh, Perak. Becoming the new Mecca to the collector of vintage supercar engine, this is the place where all the vintage supercar engine from the previous generation model will be place for display and auction purpose. Heart of Machines act as an artificial heart beating at the centre of urban Perak to keep the surrounding alive, this architecture will be the new landmark to attracts all the collector of vintage supercar engine around the world to travel across the world to see the beauty of the vintage engine components with their own eyes. This architecture needs the fuel (human) to keep the component moving, this building not only function as itself but also have mutualism factor that keeping the nearest urban alive and act as a whole system.

Tutor(s)

2022
• Page Hits: 3824         • Entry Date: 15 August 2022         • Last Update: 15 August 2022