Next Project

Carbon Footprint Estimation in the Social Housing Reconstruction Plan

Part 2 Dissertation 2012
Pablo Letelier
University of Chile | Chile
One of many topics that is of our interest as architects is the construction process, being this economic-social-industrial process an element that, apart from consuming large amounts of energy and materials, puts out quite a lot of pollutants due to the different stages starting from the elaboration, usage and demolition or recycling of a material or building. Studies say that 40% - 50% of global emissions of greenhouse gases come from the construction sector. We live inside a system, among social, economic and ecological actors. As architects we must build for this system and not for the personal development.

The last earthquake and tsunami that hits Chile the last 2-27-2010 left many cities destroyed and many habitants without a place to live. The reconstruction plan for this mayor natural disaster is the opportunity to evaluates the footprint on the environment that the social housing construction is leaving.

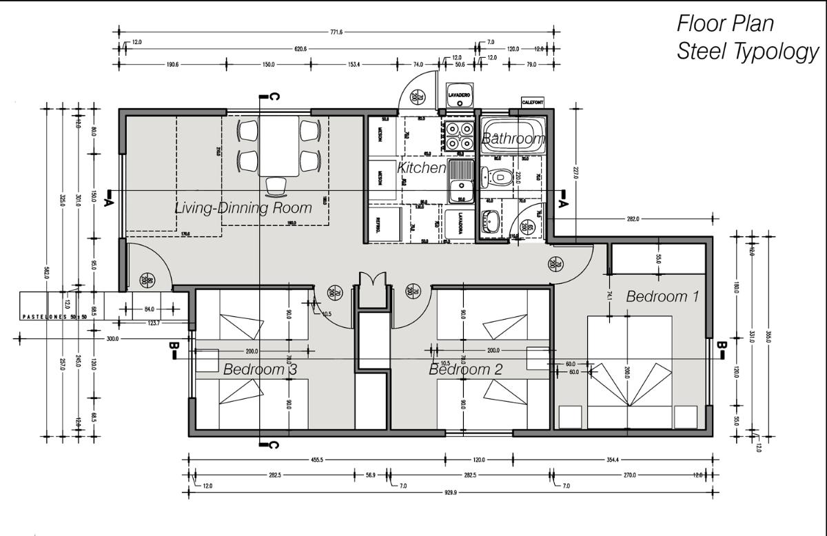
This Dissertation estimates the Carbon footprint and energy consumption in the life cycle of 4 housing typology, for the post-earthquake reconstruction plan in Chile, through collecting data, both local and international information, to elaborate a comparative analysis of emissions of predominant materials regarding the different typologies of the social housing plan.

Are we doing the same type of housing? Or, are we, as architects, taking this opportunity to create a new way of living inside a system and re designing the social housing for future natural disasters?


Tutor(s)
Professor Francis Pfenniger
2012
• Page Hits: 8054         • Entry Date: 16 July 2012         • Last Update: 16 July 2012