Next Project

A Case Study Evaluation of Maggie’s Cancer Caring Centre, Cheltenham

Part 2 Dissertation 2012
Northumbria University Newcastle upon Tyne | UK
This inquiry evaluates the architectural design decisions of the Maggie’s Cancer Caring Centres with respect to their successful effects on patient well-being. The Maggie’s Centres are underpinned by a philosophy which seeks to provide the support and environment to inspire visitors through and beyond their cancer journey. The charity delivers this support by means of exceptional quality of patient care, as provided by its staff, coupled with architecture which reflects the value and worth afforded to each individual visitor.

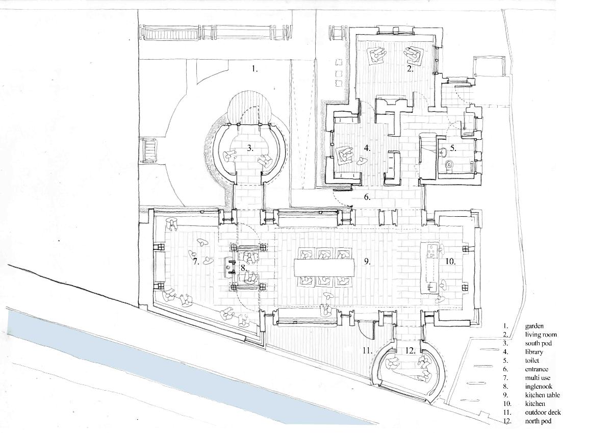
The inquiry focuses on the Maggie’s Centre Cheltenham as an in-depth case study, due to its currency as the latest Maggie’s Centre to open at the time of writing. Cheltenham was also chosen as an example which would build upon lessons learned from previous Maggie’s projects. Using mixed-methods qualitative approaches within the case study, the inquiry evaluates the opinions of the visitors using the centre, in particular highlighting comparisons of Cheltenham with their previous experiences of NHS facilities. The topics for investigation were therefore generated directly from the users’ responses. An ethnographic study of the daily use of the centre was enabled through a volunteering period in June 2011, whereby the author observed and analysed the centre’s everyday functioning. With the ethical approval of the charity, grounded and unbiased data was obtained, without the visitors’ responses being influenced by the researcher’s architectural background. Volunteering also allowed art therapy and focus group sessions to be conducted, designed to provide a supportive forum for visitors to express their emotions and opinions of the building and personal journey. These findings were cross referenced with the Maggie’s charity care philosophy, and the design intentions of Sir Richard MacCormac (The architect for the centre). A literature review on the subject of ‘healing architecture’ was also conducted to guide the inquiry and its objectives.

My family’s ordeal with the impact of cancer sparked my desire to develop a greater personal understanding of the diagnosis, treatment, care and support of patients, and the wider psychological and emotional effects that accompany the condition. This personal background engendered an empathetic relationship with the cancer patients and carers encountered at Cheltenham.


Tutor(s)
Mr Peter Holgate
2012
• Page Hits: 14610         • Entry Date: 17 July 2012         • Last Update: 17 July 2012