Next Project
Commendation
Serjeant Award for Excellence in Drawing

Re-Silvering The Mirror

Part 1 Project 2003
Paul Jakulis
University of Greenwich | UK
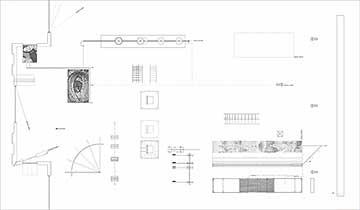
Re-Silvering the Mirror is an architectural investigation, which strips bare the process of editing and reveals the complex political and cultural mechanisms behind it.

Initially, the notion of reflection is analysed through a series of particular cases, feeding from Lacan’s mirror stage psychoanalytical research and spacing between the physical and metaphorical extents of such phenomenon.

Separate installations and representations of the considered hypothesises form an initial matrix of interpretation, the first brush strokes of a new silvering on the concept of reflection, seen as the founding element of editing.

A play on action and reaction, a path on the edge of the two sides of a mirror, boundary from where both notions are experienced, moves from reflection to pure editing and is therefore transformed into its focal metaphor, the phoenix and fossil coal.


Pure information and their eventual edited interpretations are simultaneously enacted by the final design proposal, a kinetic installation which processes mechanically text and images fed to an interactive space, where common use objects interact creating a symphonic sequence of consequential actions, dictated by the nature of the information itself and the mechanisms of the editing process.

Combinations of actions and coincidences in their timings and simultaneities generate a spatial representation of editing into a theatrical play of happenings arranged into a scenographic composition of machines and objects, which lose their common identity to perform a metaphorical act onto a mechanical stage, projected on the backdrop of a kinetic Sir John Soane Museum façade, symbol of the theatrical richness – in meaning as in space – within the installation.




Paul has constructed a stunning beautiful and remarkable project in both its technical and theoretical aspects. The starting point, for the all the students investigations in the atelier, was the wall. The first investigation was the crossing of the material and a narrative, followed by an exploration of the relationship of what was behind or across the wall. Pyramus and Thesbe, Calvino, Kafka and Benjamin were some of the reference points as the students started a series of material constructions. These constructions were then applied to particular sites. Paul took the ‘mirror’ as his mediating surface. He reflected on the Soane museum and Lacan and then applied the thinking through making and drawing to the ‘media’. The editing of the information that we see and hear and Paul sought to create an architecture of that process. It is timely that the editing of information by the government and our media is under scrutiny this project presents an architectural field of operations for editing. The project reveals the construction of the control of the image in the editing process. Power attempts to manipulate the event the editing process can costs lives. Can architecture expose the truths and lies through the immateriality of glass and its mirroring? I remember being surprised and provoked by Liebskin's entry to the Venice Biennale in 1984 when he exhibited his writing machine. Here is an editing machine: and an architecture of exposure.

2003
• Page Hits: 13727         • Entry Date: 13 September 2003         • Last Update: 13 September 2003