Next Project
SOM Foundation UK Award
Serjeant Award for Excellence in Drawing

Appearance-Disappearance

Part 2 Project 2003
Carolin Hinne
Architectural Association London | UK
Appearance-Disappearance

Architectural objects emerge out of the lines that describe them, while the lines themselves will recede and disappear. This moment of emergence captures a series of ‘in-betweens’: in-between drawing and model, pattern and garment, process diagram and spatial artefact, even plan and building. Working at the scales of the body, the room and the urban fragment, I created a process of making architecture that grows between the thing itself and those marks that capture it on paper.

My medium of choice is the pliant three-dimensional surface. I began with flat-pattern drawing to develop the body’s measurements in two dimensions, suspending its emergence from the plane of the paper. Polynomial equations and geometric constraints were used to produce sparse bundles of threads that coalesced into continuous surfaces. And these surfaces were then deployed to define the boundaries of a room-size installation.

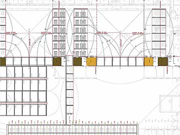
In my final attempt to produce space, I devised a folding sequence involving the plans, sections and elevations of a modern addition to Sir Edwin Lutyens’s Page Street housing estate. In response to the programmatic requirements of the brief, I added extra ‘material’ to the overlapping areas of the pattern, creating new spaces – one-sided, two-sided, symmetric or seriated – along the way.



In Diploma Unit 5, the surface as object of knowledge is our conceptual stock-in-trade. Carolin set herself a particular task within this agenda, jointly exploring the themes of emergence and sidedness. Her first project, a wearable artefact titled ‘The Data Suit’, bridged the gap between the tailor’s flat pattern and the piece of clothing eventually made out of it – or, if you like, between the formative process and the artefact produced. Her third project expanded this line of enquiry into a full-blown design methodology, combining traditional actions of descriptive geometry and performance-like presentations that made some of our tutorials feel like cookery demos.

Carolin's work raises elemental questions, such as ‘How many sides does a wall have, and why’? And her responses are extremely sophisticated, to the degree that her work proposes new strategies for the way in which one reads an architectural project. The working methodology she developed from this questioning goes back to the fundamental acts of design, examined at various scales, from body to city. It is both ‘new’ and ‘old’, as mindful of a long drawing tradition as it is contemporary in its embrace of numeric modelling and fabrication. We feel, as tutors, that she did – and is doing - work of exemplary quality.

2003
• Page Hits: 16548         • Entry Date: 14 September 2003         • Last Update: 14 September 2003