Next Project
Commendation

Seven Town Houses in Antwerp

Part 2 Project 2004
Richard Marks
London Metropolitan University | UK
A battered yet sturdy landscape of industrial decline; Antwerp’s 18th-century docklands are currently being revitalised by an influx of young artists and designers. Townhouses make up the majority of Antwerp’s residential stock; solid, spacious shells adapted to endless situations. This proposal reinterprets the historic townhouse and fills a void at the end of an otherwise well-defined urban block.
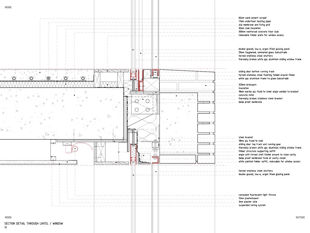
Exploration through model-making resulted in the adaptation of each of seven houses proposed on the site to its immediate context, shaping coherent and pleasing interior spaces. Although this is an academic exercise, my intention has been to work with as great a sense of realism as possible. Detailed design aims to reconcile the contextual and aesthetic with the pragmatic constraints of building.



The unit focuses on specific locations with a clear interest in the actual process of building or constructing within a precise cultural framework.
Avoiding overbearing ideological constructs all students are required to formulate an architectural proposal as a direct response to a particular
context. Richard’s portfolio is exemplary in the sense that his project examines the typology of the town house in the historic city of Antwerp. He
is able to demonstrate that design development through a series of working models, can reach higher levels of refinement. Precise and well judged
detailing reveal a careful approach that is both innovative and concerned with examining the relationship between structure and final finishes while the general concept remains intact.

2004
• Page Hits: 29514         • Entry Date: 05 July 2004         • Last Update: 05 July 2004