Next Project

Mapping the Use and Creation of 'Desire Paths' at Whiteknights Campus

Part 1 Dissertation 2020
Wiktoria Jarosz
University of Reading | UK
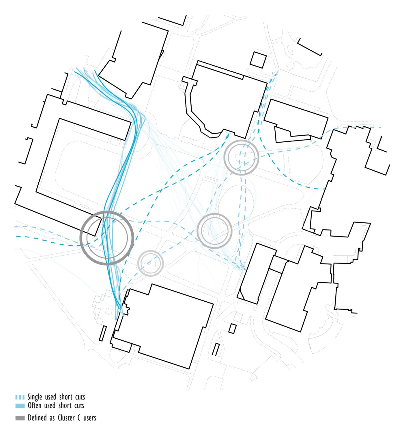
A desire path is a rebellion against the imposed ruling of designed paths, through the creation of alternative, refined routes.

Desire paths are a form of resistance against what is ‘proper'; the research suggests there is a subconscious yearning for more organic routes which cut through imposed angular corners of rigidly designed paths. An analytical observation of Whiteknights Campus presents the importance of desire paths in urban design by creating mappings to examine their nature, offer user feedback, and provide a more personal exploration of space. The results suggest that desire paths are not just faster, alternative routes from A to B, but more of a translation of thought during urban navigation.

I have found desire paths to be more like performance art pieces, as their visual language is imprinted in the landscape to be walked by another user, creating a cycle of feedback for urban designers to consider while planning for the built environment. A desire path is derived from the needs of the surrounding area, meaning that one desire path cannot be re-walked in anoth-er location. Therefore, can removing a desire path be just as hostile as remov-ing a piece of art from its intended location, thus eliminating its meaning?


Tutor(s)
Penelope Plaza
2020
• Page Hits: 7251         • Entry Date: 21 July 2020         • Last Update: 21 July 2020