Next Project

LIVE SPACE: RETRIEVING LOST MEMORIES -Museum of Hong Kong Culture

Part 1 Project 2006
Tse King Tong
University of Hong Kong | China
Hong Kong Culture is the Coexistence of Existing Culture - traces of daily life on streets, and Lost Culture – the history and memory which have been neglected.
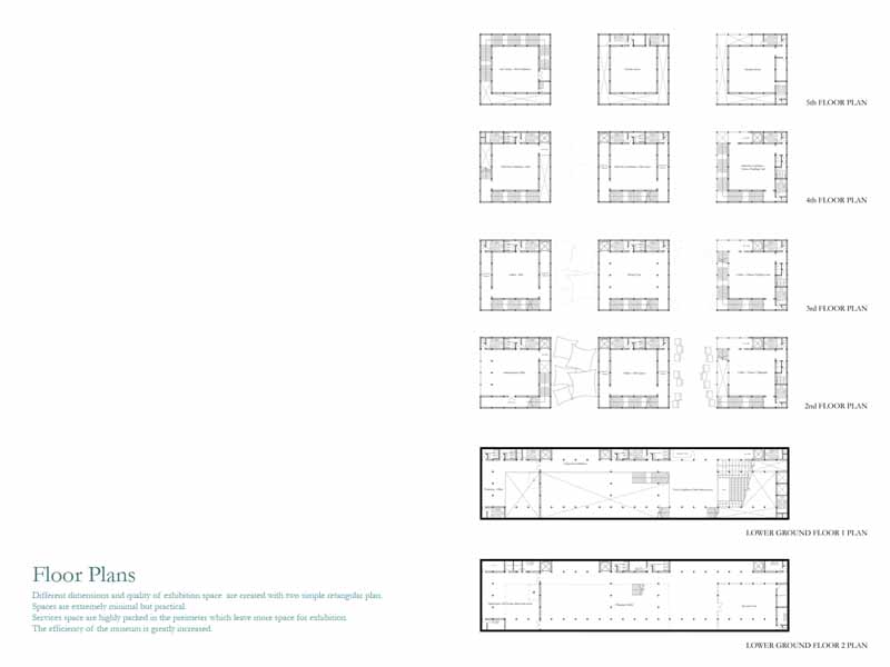
In the project, I create three extremely pure boxes which act as container for Lost Culture. Meanwhile, Live Space in between are designed to activate the space so as to achieve the concept - Retrieving Lost memory. The Museum Experience between lost and existing culture is not only limited ‘within’ the museum, but it further extends to city. The ambiguity between city and culture has been demonstrated through the design and the boundary between cultural museum and city has been blurred and rethought.



The programme asks for a cultural solution in the complex high density setting of the old urban fabric of Hong Kong. The student has presented a simple yet sensible answer to the problem. A simple definition of space through cubes is used by the student to contact with the complex urban fabric, yet activities of the community can filter through the spaces around the cubes. The design was also environmentally concerned with the surroundings as well as interactive with days and nights. The exhibits within the museum spaces is well balanced by flexibility and controlled routing. The overall presentation is excellent.

2006
• Page Hits: 7826         • Entry Date: 03 July 2006         • Last Update: 03 July 2006