Next Project

Subverting Colonial Identities: A Space Syntax Analysis of the (D)evolving Singaporean Home

Part 2 Dissertation 2023
Jo Yee Ng
Cardiff University | UK
The hybridisation of British colonial and vernacular architecture has been well documented through analysis of façade design and ornamentation. The underlying motive of this dissertation was to scratch beneath these material surfaces; to explore the spatial qualities of housing and determine the depth of colonial influence on dwelling.

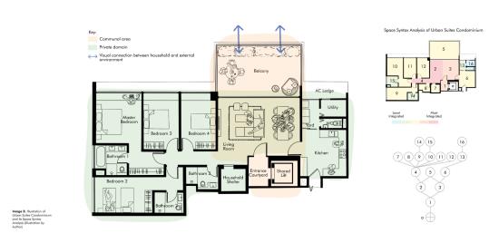
This dissertation investigates three typologies within ‘Emerald Hill Conservation Area’: (i) the pre-colonial kampung, (ii) the colonial shophouse, and (iii) post-colonial apartment. Through case study analysis, involving space syntax and qualitative methods, this paper traces the evolution of vernacular spatial characteristics, exploring inhabitants and their everyday interactions within and with the physical spaces of these dwellings. The approach was further framed by my own embodied and cultural knowledge, alongside historical records and grey literature, including significant colonial policy interventions, which help to place the case studies within a wider societal context.

I believe the dissertation succeeds in breaking down the dwelling types into individual space functions, which aids interpretation and understanding of how local socio-cultural conventions have changed through time and how these are reflected within the spatial layout of Singaporean homes. This research seeks to challenge the notion of the colonial identity, highlighting the conflicts of power and influence between colonist and colonized. I argue that an identity is shaped through the cumulative everyday acts of resistance, adaptation and interaction of inhabitants with their physical spaces.


Tutor(s)
Sam Clark
Dimitra Ntzani
2023
• Page Hits: 3445         • Entry Date: 13 July 2023         • Last Update: 05 November 2023