Next Project
Commendation

Irish Town, Gibraltar: Street expressions of migrant identities

Part 2 Dissertation 2024
Mariam Pinto-Rodriguez
Manchester School of Architecture | UK
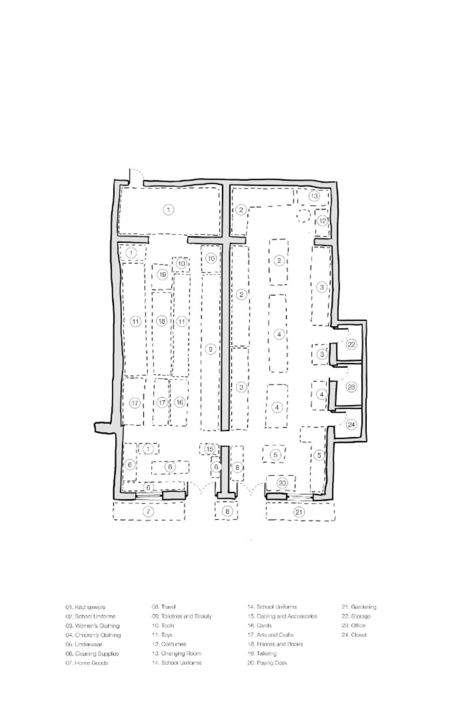
Irish Town Street in Gibraltar is defined by intertwined historical and geographical intricacies that stem from complex migrant trajectories. This dissertation examines these migrant flows through forms of representations expressed among spatial qualities on the central street of Irish Town, contributing to spatial studies within the context of Gibraltar. Postcolonial theories are adopted to understand how questions of belonging, identity, and power dynamics impact how migrants actively shape urban spaces and everyday practices and, as a result, influence the making of urban life profoundly.

Following a scalar method, this research investigates concepts from a city-wide perspective, down to a street level, and finally towards an interior and object perspective, applying a visual ethnography to unravel these dialogues. Urban spatial displays speak to a complexity of migrant identities and reveal embedded hierarchies of cultural expressions, which range from British to Spanish, Moroccan, and South Asian. This dissertation seeks to untangle Gibraltar's complex historical and contemporary migrant-making processes by focusing on one particular street. The street shows us the interwoven dynamics of placemaking with waves of displacement, attempts at making a space of belonging, and finding ways of spatial coexistence towards a common ground.


Tutor(s)
Huda Tayob
2024
• Page Hits: 3331         • Entry Date: 21 July 2024         • Last Update: 06 January 2025