The "in-between": cabman's shelter, college of knowledge and taxi wash, Cadiz

Part 2 Project 2007
Mark Rintoul
University of Westminster London | UK
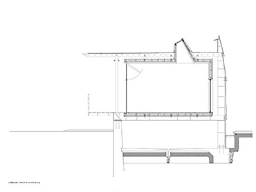
The 'in-between' is an ambiguous zone, highly specific but unmemorable, neither here nor there, dense but empty, sublime and banal, artificial and natural, ordinary and extraordinary. A non-place where an accidental witness (the taxi driver) might glimpse the green ray, a rare horizon phenomenon said to bring good fortune and love. Just outside Cadiz, beneath an elevated highway, three separate but related programmes were developed: cabbies' shelter, college of knowledge and taxi wash. 'The Knowledge' and it's language of grid, points, routes and monuments was used to generate space. The project articulates an overlooked space between the road engineer's curves and drifting sand dunes, engaging the marvellous with the mundane.


A survey of ‘edge conditions’ on the Atlantic coast of Spain resulted in a chance encounter with a mundane location : a marginal site caught between road and dune at the entry to Cadiz.

Subjecting an overlooked circumstance to a sustained gaze … weaving an array of researches and responses … examining the everyday … uncovered a wealth of detail and discovery that proved the ‘ordinary’ to be quite ‘extra-ordinary’.

The project works into the charged space of the ‘in-between’, appropriating the layby beneath the elevated road, marking the edge with a trench, inscribing a taxi wash as an artificial horizon device, and articulating a college of knowledge and a cabbies’ shelter.

The cabbies’ territory, in-between rides, is prompted by the arcane mnemonic devices of ‘the knowledge’ through which the apprentice taxi driver internalises the city … a language of points, lines and monuments.

This is an unpretentious and seriously lovely architectural project … captivating from beginning to end … and rather alluringly off the map.

2007
• Page Hits: 5811         • Entry Date: 05 July 2007         • Last Update: 05 July 2007