Next Project
Commendation
Komfort Award

Wrapping Urban Memory

Part 2 Project 2008
Naofumi Takaoka
University of East London London | UK
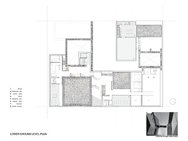
This project, for an Institute of Archaeology within the old city of Palermo, Italy, reuses a context of half-demolished buildings as urban memory, providing a re-composition of inhabitation for the site. The project begins within an investigation into a fragment of the film ‘The Sacrifice’ by Andrei Tarkovsky where a fireplace is reinterpreted through a delicate construction of thin plaster pieces to discover a nature of fragility. The ambition in Palermo is to carefully wrap existing buildings, forming a space between the new and old walls. The investigations underpin the design for the construction process as its form and interior evolves from the qualitative and quantitative history of the lost city.


This is the work of a quiet yet very talented student of architecture; a student whose fluency, ambition, and clarity as a designer are remarkable and one whose rational rigour is tempered by strong instinctual moves. The proposal for an Institute of Archaeology in Palermo organizes a complex brief within a series of distinct austere buildings and spaces where a measured reticence evokes a quiet expression of form for the storage of memory. Two existing buildings on the site are ‘cleaned’ are contained in the project, set like anchors they are the first artefacts to be installed in the Institute. This is a bold collection of buildings whose additive presence would be a welcomed and significant addition to this quarter of the city.

2008
• Page Hits: 48391         • Entry Date: 14 September 2008         • Last Update: 25 November 2008