Next Project

A New Backdrop

Part 1 Project 2010
James Crawford
University of Liverpool | UK
{A New Backdrop}

Cinema & (luxury) Apartments.

The task of master-planning a site in Liverpool began by revisiting the 1960s theories of non-plan, the cinema in particular taking inspiration from Cedric Price’s Fun Palace. Two bookends hold the cinema’s permanent functions whilst a flexible framework holds an ever-changing landscape of art spaces, cafés, restaurants and whatever the city requires. Modules are constructed in the basement and craned into position thus the bookends become the base for the towers built above.

The use of towers in this housing project developed through the exploration into urbanisation. It is predicted that by 2050 approximately 75% of the world’s population are expected to live in cities. Outwards urban expansion therefore cannot continue, in this project several towers are chosen to facilitate the re-densification of Liverpool city centre to its industrial peak. A Koolhaasian culture of congestion.

Currently, the tower has become the architects’ key tool to dazzle the voyeur, creating Bimbo Towers, producing the cosmetic surgery that is applied to our modern day city. In contrast, this project applies an intentionally banal aesthetic to a series of repeated towers, creating a new backdrop to the city.
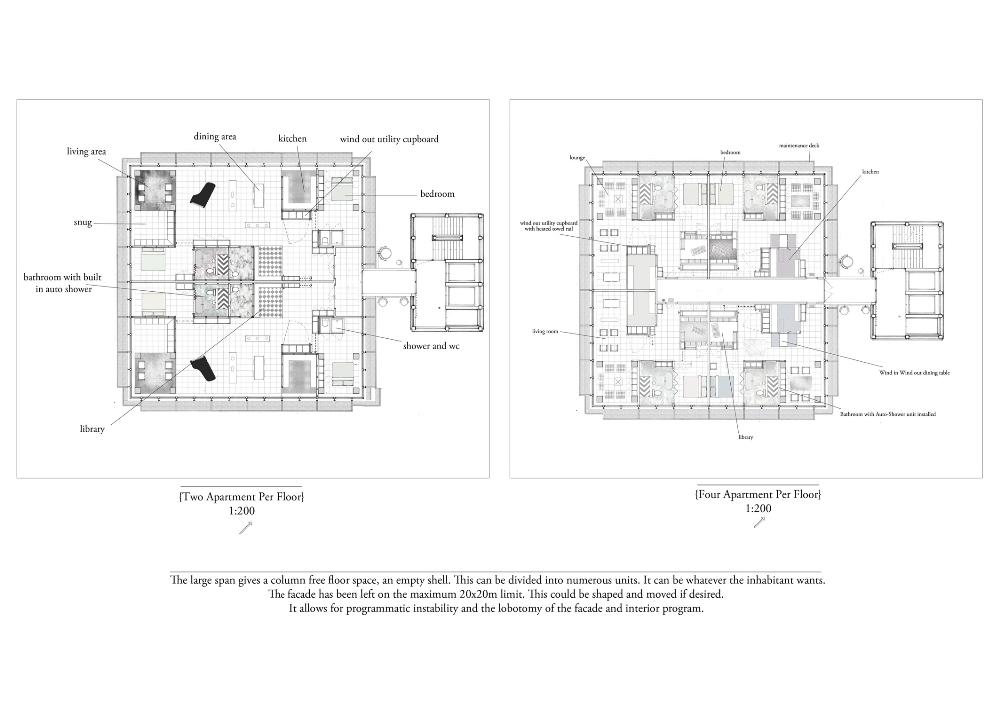
Following the 1909 theorem, the floor plate is an extrusion of the ground floor then repeated thus killing any individual artistic expression. Exploding the core out of the main living space and using deep beams creates a column-free flexible floor space and programmatic indeterminacy from a clash of programme in section.

Services are exposed between the access and living tower, thus encouraging replacement and flexibility. Its programme can be changed throughout the tower’s lifespan, hidden behind the lobotomised façade made of glass, bronze, louvers and service decks. A blank canvas used as advertisement.

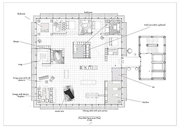
The tower features luxury accommodation, the first glimpse of this is the residents gold lift. The interior of the apartments is reminiscent of an open plan Manhattan loft that draws upon Maison de Verre technology, with sliding bookcases, travelator showers and self-serving dining tables. The apartments are a series of open and closable spaces, remaining entirely flexible to absorb the change that is life.



Students were set the challenge of master-planning a tight urban block, consisting of a cinema with associated public space and a luxury apartment building. Situated in the heart of Liverpool’s world heritage site only a stone throw away from the omnipresent Mersey. The site represented a formidable challenge because it is bound by no less than five listed buildings, which represent Victorian Liverpool at the height of its prosperity including Peter Ellis’ groundbreaking Oriel Chambers of 1864. Contrastingly, Allford Hall Monaghan Morris’ Unity building of 1997 marks the north edge of the site and Liverpool’s current renaissance.

James Crawford approached the problem with an exceptional level of rigorous intellectual curiosity and skill, combined with a sense of fun.

James developed his master-plan for the site into a mini-thesis, making a proposal for the re-densification of Liverpool back to its industrial peak by bringing the American city model of high rise living in a tight city grid to the UK.

Two high rise towers mark the boundaries of the site with the cinema in-between. The starting point for James’ cinema was Cedric Price’s Fun Palace project. This evolved into a public promenade from a square in the centre of the site up through an ever changing landscape of auditoriums, external projects, bars and cafes. Permanent cinema functions were placed in the base of the two apartment towers which also have public levels including a raised beach, an English garden restaurant and a planetarium.

James' apartments were a quirky mix of raw concrete frame and Masion de Verre inspired technology offset with opulent touches of marble and crystal chandeliers. Four concrete columns form a four poster bed beyond which, an oak book shelf slides away to reveal an en-suite bathroom complete with travelator showers.

James along with Graham Burn the other Liverpool University Bronze Medal nominee formed their own mini-studio along with two other students. These four ambitious students constantly occupied one corner of the studio continuously reading, debating, analysing and drawing pushing each other to heights never before witnessed at degree level in Liverpool.

Douglas McCorkell
Lecturer – Architect ARB


Tutor(s)
Douglas Mccorkell
Prof David Dunster
James Jones
Roy Roberts
2010
• Page Hits: 18895         • Entry Date: 25 August 2010         • Last Update: 12 September 2010