Next Project

Student Interaction

Part 1 Project 2010
Bruce Kinmond
Robert Gordon University | UK
Interaction through interpretation:

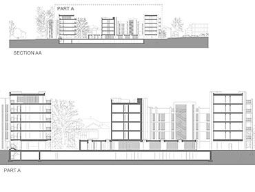
An analogous architectural approach was adopted in the design of post graduate student accommodation. Adopting 1960’s British campus design, the unit aim was to gift the Swiss with arguably the best of British architecture through interpretation.

Located on the campus boundary of St. Gallen University (Switzerland), the proposed building enables students to go about their daily routine easily. It encourages as much social interaction as possible, starting in each flat, following through into the main core of the building. I felt it was crucial to provide private living spaces for each flat, which subsequently lead into public gathering areas. The focal social areas of the design are the canteen and common rooms, therefore the positioning and layout of these spaces are the key for successful social interaction. This consideration incorporates stereotypical student life, creating a social community within the university.

The existing is highly considered in this design as the functionality is mainly determined through relationship to surroundings and how it works with them. Situated along the campus boundary, the buildings footprint relates to the wider context, featuring as an entrance which connects the university to the existing surroundings. The scheme maintains the high quality of immediate architecture through aesthetics and relationship. It also creates a flow around vegetation, becoming an element of existing permeability. Utilising the surrounding vegetation also allows pleasant views from each space while maximising the vantage opportunities of the valley.

I believe the integration of structure can be used to create specific spaces and atmosphere within them. In this scheme it encourages public gathering and spatial separation where required. This is to create a natural movement through the building relating to social interaction. An expression of the structure architecturally separates internal space and introduces light throughout, thus increasing the quality of space. Breaking up the facade, the structure reduces the visual impact implicated by scale, creating a residential community within a single large building. This relates the scheme to the social and contextual aspects of the design. The social interaction element is the nucleus of the design and reflects throughout.

Bruce Kinmond



The students present two projects in year 3. The first is an in-depth exploration of space and material in an enclosed environment and the second a study of building type with a medium scale brief. Bruce Kinmond’s work this year has been very considered and thorough.

In the first semester the students were asked to integrate a Luthiers workshop in a disused 1930’s railway store in St. Andrews. Bruce used his rational approach to plan a highly efficient set of spaces that took into account the need for flexibility in the plan. Working with tight restraints and a reduced palate of materials he managed to provide a generous environment for the artisans.

Second semester was unit based and Bruce undertook a study of post-war modernism through case studies as part of his thesis. The work of analysing a specific building of that period closely informed the design work for his student residences at a site next to St. Gallen University in Switzerland. The unit encouraged an active appreciation of building typology, which Bruce relished, and with his final scheme he very successfully communicated the analysis of the Cripps building by Powell & Moya Architects.

Tutor(s)
Samuel Penn
2010
• Page Hits: 9122         • Entry Date: 28 August 2010         • Last Update: 30 August 2010