Next Project

Museum Of Contemporary Art, Dataran Merdeka

Part 2 Project 2011
Shazana Hashim
University of Malaya | Malaysia
The ‘Padang’ or now better known as ‘Dataran Merdeka’ post Malaysia independence, symbolises the nostalgic past brilliance of the English architects minds who drew inspirations from buildings throughout their once great empire, and recently icon of Kuala Lumpur. It is an irony, that this cultural heritage is now a forgotten civic centre losing to the new KL City Centre.

The diminishing appearance and identity of ‘Dataran Merdeka’ is in need of renewing its soul. Currently, it is the must visit place to KL by many tourists, however the historical buildings are inaccessible, unwelcoming and uninspiring. The site is surrounded by standalone buildings with no nodal points for people. There is lack of pedestrian “flow”. Obviously, this attracts criminal activities, and tourists seldom return.

The design intention is to attract people to the ‘Padang’, by creating linkages from the pedestrian nodes to an urban courtyard. The courtyard then draws people to the transparent underground Museum of Contemporary Art. The courtyard acts as a breathing space of greenery where social activities occur. It also links to the Graffiti Street Art Gallery and History of KL Gallery that connects the courtyard to the city. This will create a new soul, gives a sense of the place, and symbolises the new beginning.

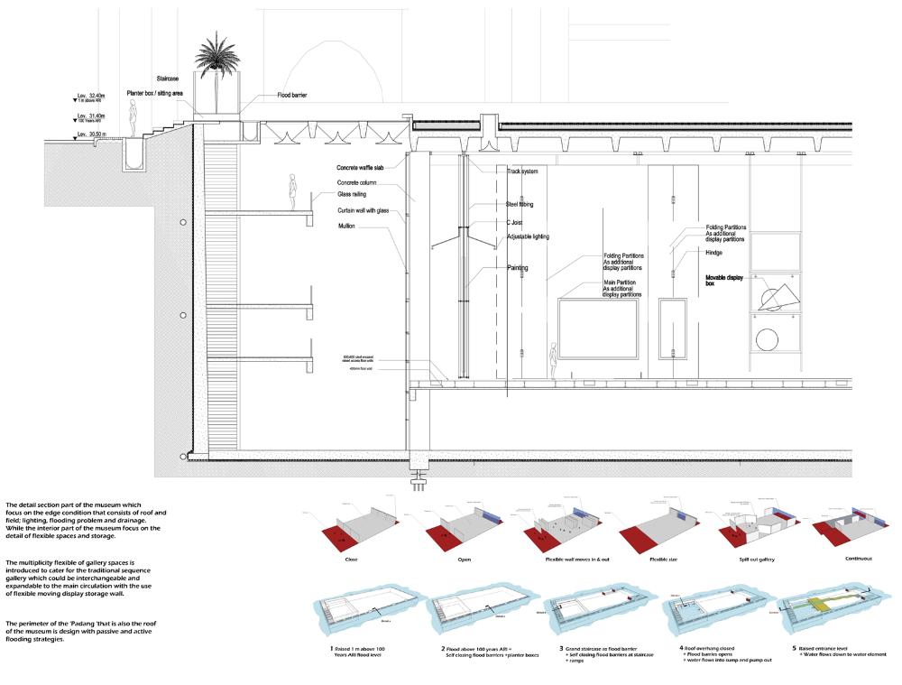
A flexible multiplicity gallery spaces are introduced. This is done by using moving display storage wall system. The museum caters for the traditional sequence gallery and 4 other galleries with different heights that could be interchangeable and expandable to the main circulation. These flexible configuration systems give a new found freedom for all Malaysians to express their art forms freely.

The proposal includes reorganizing the circulation of tourist buses / vans and various entrances in approaching the ‘Padang’. The Museum roof is equipped with passive and active flooding strategies, and skylights, which also act as a stage. The follies are strategically placed at pedestrian nodes as entrances or public amenities.

These new sequences of flow give sense of direction and navigate people throughout the surrounding site of ‘Dataran Merdeka’.

Padang – is a Malay name for field
Dataran Merdeka – means literally Independence Square


Tutor(s)
Naziaty Mohd Yaacob
2011
• Page Hits: 9954         • Entry Date: 12 September 2011         • Last Update: 12 September 2011