Next Project

Monumental Ephemerality

Part 1 Project 2011
Jonathan Woodward
Liverpool John Moores University Liverpool | UK
Monumental Ephemerality


A project that looks to confront the question of being within a time of social and physical transmogrification.

A scenario which holds dialectics within the realms of culture and physicality imposed by the effects of sea level rise and an insufficiency of freshwater in Barcelona.

The imminent changes to our physical terrain prompted a neo-defensive landscape with this architecture able to withdraw its porosity for a performance of fortification from a rising sea level.

An architecture suspended within the inherent juxtaposition of water as both survival mechanism and instrument of greatest opulence.

An inhabitation of existing structures (artefacts) with interventions and intersections made for the defence and renewal of the city. A re-appropriation of a city block comes to serve as a potential model for other coordinates across the city with the viability for modularity or analogous typologies.

A curated ritual of collecting and liberating water in the urban environment with a desalination plant that supplies the immediate community. An urban spring that sources sea water from a subterranean reservoir and undergoes an act of binary sanctification to impart the demands of the populace.

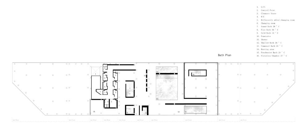
The elevated presence of water in a composed thermae to explore the idea of purging on all levels and scales. A collective of public baths of different phenomenological capacities are served from the by-products of the desalination process and its associated outputs.


Tutor(s)
Ms Gladys Masey-Martinez
2011
• Page Hits: 14233         • Entry Date: 19 September 2011         • Last Update: 19 September 2011