Next Project

A Theatre Building

Part 2 Project 2014
Ashley Franklin
Liverpool John Moores University Liverpool | UK
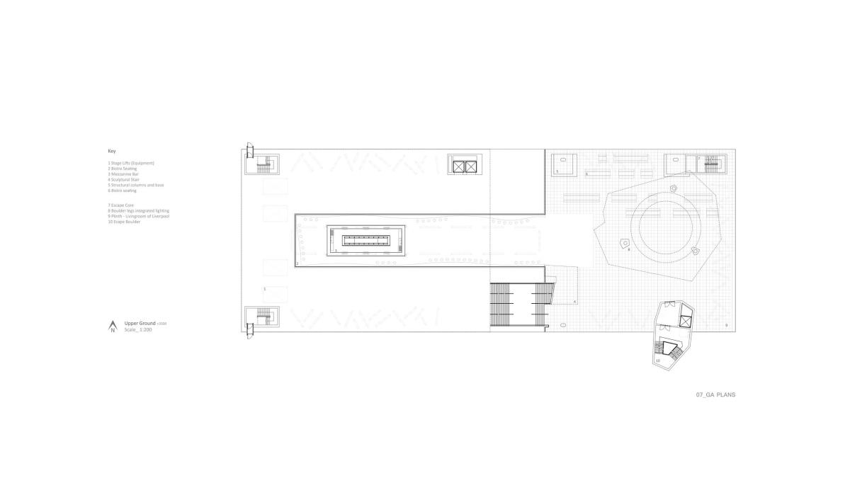
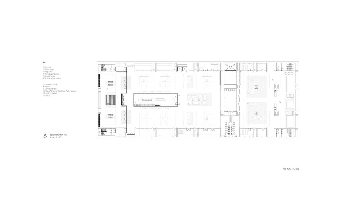
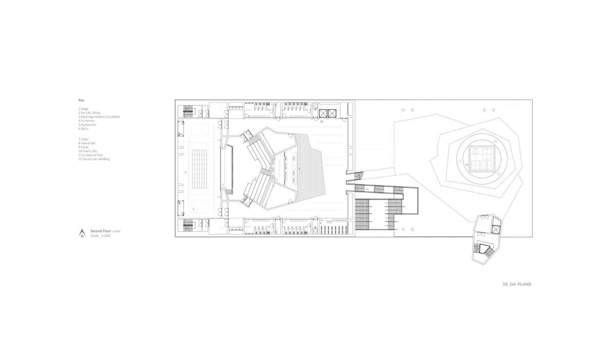
The Theatre Building Project sparked out of the debate for master-planning the area and provides a physical landmark denoting the importance of anchoring Liverpool’s Creative Sector. With precedent of gentrification looming a new alternative investor and building type is needed. The location is at the heart of debate between investor, local council, creative inhabitors and land owners.

The building becomes host to this debate and celebrates the coming together of minds to create something unique and spectacular through the technical media and drama led performance the area has become renowned for.


Tutor(s)
Ian Wroot
2014
• Page Hits: 6057         • Entry Date: 01 October 2014         • Last Update: 06 October 2014