Next Project

ZCP 76, Mihai Voda Church

Part 2 Project 2022
Eduard Dumitru Untaru
Ion Mincu University of Architecture and Urbanism | Romania
There is a triangular dense garden that extends itself towards the limits of the site squeezing the buildings towards the limits.

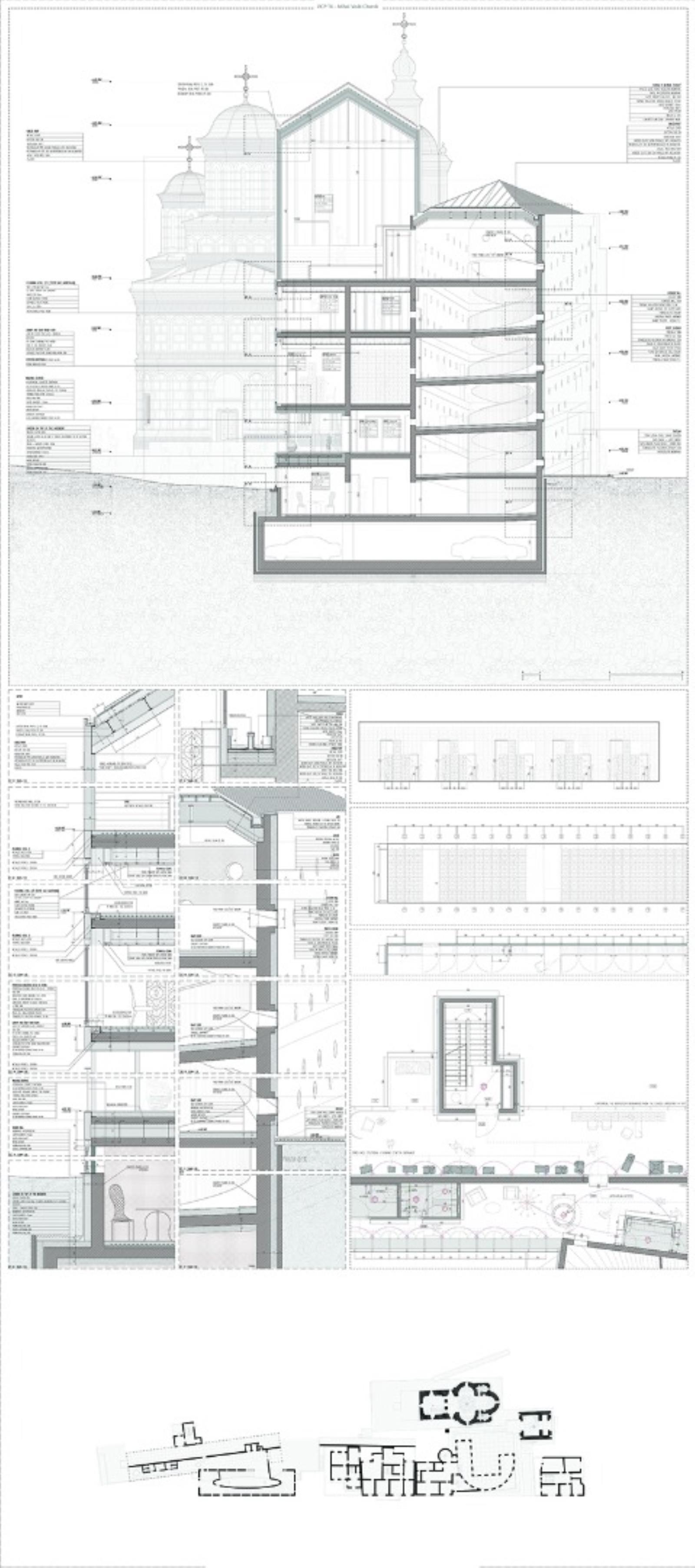
The garden is now anihilated by cars on two sides. To solve this problem the parking was placed underground, from where the residents can directly access their apartaments. A concrete slab was placed at the interior residential buildings ground floor height (which is one meter above the ground level).

The arched garden is unaltered, undesigned in the middle, whereas in the right corner, a certain human scale is achieved by the contiguous placement of builidngs, very close one to another. Here one can find a helicoidal staircase and while losing one’s sense of orientation, might arouse into a hidden room underneath, where the “Mihai Voda” Monastery Museum is located. Another two rooms of the museum are existing into the thick concrete basements built under the Church and the Tower back in 1984 as a result of translating the church on rails while Ceausescu’s demolitions took place, destroying the city.

In the left corner of the garden, a long seminary house stretches along its limit. This house has two faces, one towards the garden, near the church, with a more quiet character, and on the other side of the structural wall, spaces with a more public nature. At the very last level, one can enter from the gallery ramp into a large room, under a pyramid hip exposed roof, from where the roofs of the “old”, remaining city can be seen.


Tutor(s)
Iulia Maria Stanciu
2022
• Page Hits: 3234         • Entry Date: 30 September 2022         • Last Update: 18 October 2022