Next Project

Vegan Production Centre

Part 2 Project 2023
Gizem Bulbul
University of Westminster London | UK
This project involves two strands the aesthetics and an Eco-Socialist urban vision, located at Oxford Street East. The aesthetic appearance of the Eco-Socialist society is formed by experimenting with sculptures which are then developed into architectural features. The existing site is predominately a consumerist street where capitalism is a key notion. The proposed post-revolution masterplan was created by collaborating with fellow students. Within the wider masterplan, existing buildings are converted into new purposes such as Peoples’ Parliament, a Museum of the Revolution, and co- living units. Alongside with the proposed People’s Palace, Speakers Square, and democratic spaces.

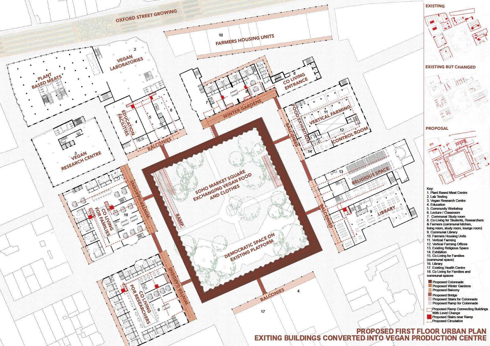
Within the urban vision, the Vegan Production Centre is a part of a new way of life in Soho Square following the collapse of Capitalism. It is an adaptive reuse urban scheme inhabiting and retrofitting the existing buildings with winter gardens, balconies, and new uses. The project focuses on vegan diets, growing, and sharing. The Soho Market Square is the heart of the project, encouraging the community to bring their own produce and come together to share and exchange food. The Square connects research centres, meat-growing labs, and co-living units to create a symbol of work, production, and life in a new society.


Tutor(s)
Sean Griffiths
2023
• Page Hits: 2695         • Entry Date: 22 September 2023         • Last Update: 03 October 2023