Next Project

Pottery Lane Earthworks

Part 2 Project 2023
Adam Nightingale
Northumbria University Newcastle | UK
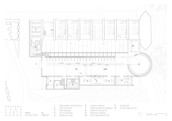
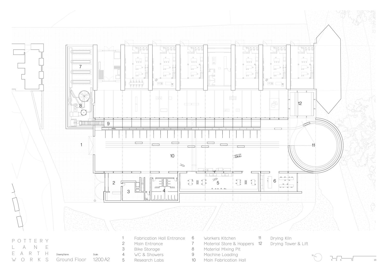
Pottery Lane Earthworks combines traditional building methods with modern technology to industrialize earthen construction techniques. The earthworks uses local excavation waste to create prefabricated rammed earth blocks – a low carbon, locally sourced building material – to be used in nearby construction projects.

The scheme is a modern interpretation of a brickworks, serving as a symbol of sustainable industry on a key gateway into the city. The blocks are dried through natural ventilation within the sculptural chimney which doubles as a visual monument to sustainable development. The site's soil, contaminated from past lead production, undergoes Phytoremediation, cleaning the soil and creating habitats for both flora and fauna. Once cleaned, the soil can be used to construct the building.

In addition to the fabrication of the blocks, the project includes a self-build prototype housing scheme aimed at rebuilding local communities affected by deindustrialization. Workers are given the opportunity to gain practical experience by building their own homes. The proposal also encompasses the adaptive reuse of adjacent vacant archways, repurposing them into workshops tailored for artisans specializing in earth-related crafts, such as pottery studios and tile-making workshops.

The scheme celebrates and promotes earthen architecture, increasing public awareness and knowledge around the material.


Tutor(s)
Mr Paul Jones
2023
• Page Hits: 3851         • Entry Date: 26 September 2023         • Last Update: 04 October 2023