Next Project

Reconfiguring [con]text

Part 2 Project 2004
Desrae Dunn
Francesco D'Alessio
University of the Witwatersrand Johannesburg | South Africa
“RECONFIGURING [CON]TEXT” investigates Alexandra township (Alex) in Johannesburg, South Africa. Alexandra has a rich past and was a place of resistance and free thought during Apartheid. The thesis stems from a quote from a documentary “Alex is a place that swallows its history”. (Young Lions 2001)

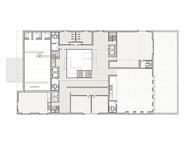
To facilitate multiple and diverse narratives about Alex’s past, present and future, a loose SYSTEM was proposed where RECORDING, STORING and BROADCASTING are inter-linked.

The primary focus is the ‘storing’ component or archive within this system. The challenge was how to activate the archive for the layman and enable people to critically question the archive as a system and a construct.



This project was chosen for its identification of the importance of narrative and story for the re-imagining of the apartheid city. In the absence of a recorded history, or rather in the face of removals and eradications, much of this city is reclaimed through the telling of story’s about place, time, event, celebration and loss.

The project provides a facility for the recording, storing and broadcasting of stories about life in Alexandra Township, in the heart of the city of Johannesburg. These are thereby transformed into a resource for the re-imagining of the city in accordance with the lives and experiences of those who live there.

Tutor(s)

2004
• Page Hits: 2915         • Entry Date: 23 July 2004         • Last Update: 23 July 2004