Next Project

How Can We Live Together in Harmony?

Part 1 Project 2024
Aude Egger
University of Brighton | UK
In my projects, I pay particular attention to questions of accessibility and interactions between users, to make their environment a more harmonious place to live.

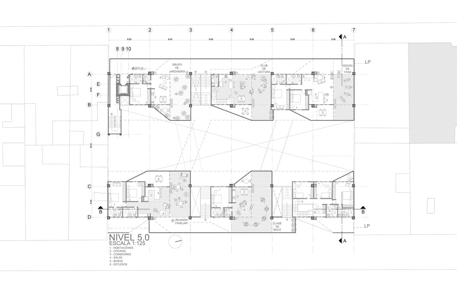
This project for the Mursell Estate in Lambeth aims to provide residents with additional outdoor spaces and social facilities, which are currently seriously lacking on the site.

The existing balconies are extended by 2.5 m in the proposal, creating a continuous walkway on floors two, four and six. This will provide better connections between the blocks, particularly on floor six, which is currently only accessible by stair. The lifts are also extended to the sixth floor to provide access for users with reduced mobility.

The design proposal for removable semi-transparent curtains provides flexibility, improving privacy when closed and encouraging social interaction when open. This additional public passageway softens the separation between public and private by inviting residents to occupy a semi-shared space with their neighbours. Located inside the blocks, away from road traffic, it creates a sense of interiority, bringing life and harmony to the community.

The improved connectivity is complemented by a rooftop cinema and park. This lightweight structure sits over a carpark in the central block, providing additional public space above ground, without compromising existing facilities.


Tutor(s)

2024
• Page Hits: 1263         • Entry Date: 19 September 2024         • Last Update: 19 September 2024